CGA – T/REX Studio

CGA

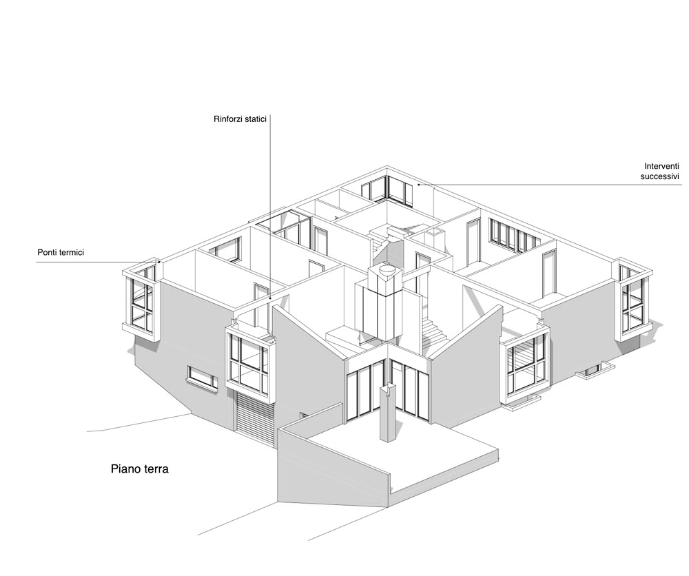
Risanamento di una villa moderna a Cureglia, TI

Terrasse-Rez Terrasse Façade Materiaux Teintes Porte-interieur Porte-illuminée Photo-24.07.19-11-36-12
1_CGA-Situation Façade Piano-terra Coupe Cantine Piano-terra Primo-piano Sotto-tetto Completa-annotata

L’involucro della villa degli anni ’70 è risanato con metodico rispetto dell’architettura originaria del suo autore, l’arch. B. Bossi. I materiali e i colori sono scelti meticolosamente per riportare la costruzione al suo splendore iniziale. Gli interni sono rivisti per adattarsi ai bisogni dei proprietari e i rivestimenti restaurati.

L’enveloppe de la villa des années ‘70 est rénovée avec un respect méthodique de l’architecture originale de son auteur, l’architecte. B. Bossi. Les matériaux et les couleurs sont méticuleusement choisis pour redonner au bâtiment sa splendeur d’origine. Les intérieurs sont adaptés pour répondre aux besoins des propriétaires et les revêtements sont restaurées.

Fotografie/Photographies © T/REX